안녕하세요.
검토지기입니다.
오늘은 장애인화장실에 대한 내용을 중점적으로 살펴보겠습니다.
일단 기준부터 살펴볼까요!
화장실의 대한 평가는 3.위생 에서 이루어집니다.
3.1.1의 경우 장애인화장실 설치 대수를 살펴봐야합니다.
전체 층수의 몇%를 설치했는가 입니다.
기준상으로는 최소 1층에 여자,남자 각각 1개씩 설치가 의무입니다.
허나, 주민센터나 청사 같은 경우 전층에 설치하라는 의견이 자주 나오는 편입니다.
또한 장애인을 위한 건물이나 최우수를 받아야 하는 건물은 전층에 설치 의견이 항상 나오고 있습니다.
3.1.2의 경우 안내표지판 설치 입니다.
화장실 레이아웃이 복잡하지 않다면 실명안내표지판만 설치하여 넘어갈 수 있습니다.
그러나 레이아웃이 복잡하거나 안쪽에 숨어있는 경우 화장실 촉지도 설치 의견이 나올 수 있습니다.
3.2.1~3.5.3의 항목들은 기준대로만 설치한다면 문제 없는 항목입니다.
다음은 실제 적용된 레이아웃 종류를 살펴보겠습니다.
장애인화장실은 크게 2가지로 나뉩니다.
"독립형 화장실", "큐비클형 화장실"
독립형 화장실은 일반화장실이 있고 장애인전용화장실이 별도로 설치되는 것을 뜻합니다.
(*일반화장실 없이 독립형 화장실만 설치하는 경우도 포함됩니다.)
큐비클형 화장실은 일반화장실 내 장애인큐비클이 설치되는 것을 뜻합니다.
BF에서는 독립형 화장실 설치를 권장하지만 면적이 되지 않는 경우 큐비클 형태로 설치가 됩니다.
그럼 독립형으로 계획되는 레이아웃들을 먼저 살펴보겠습니다.
첫번째.

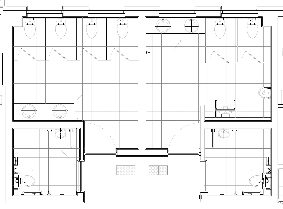
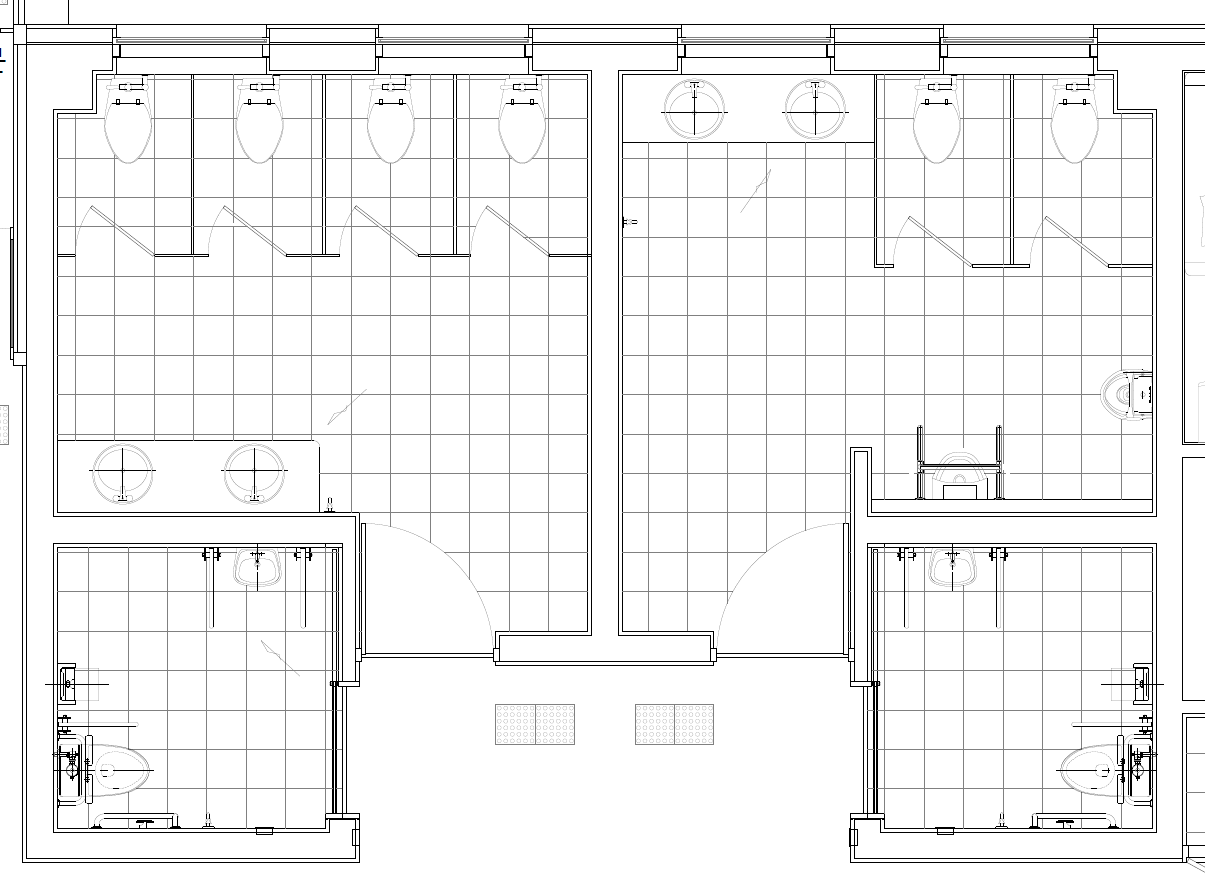
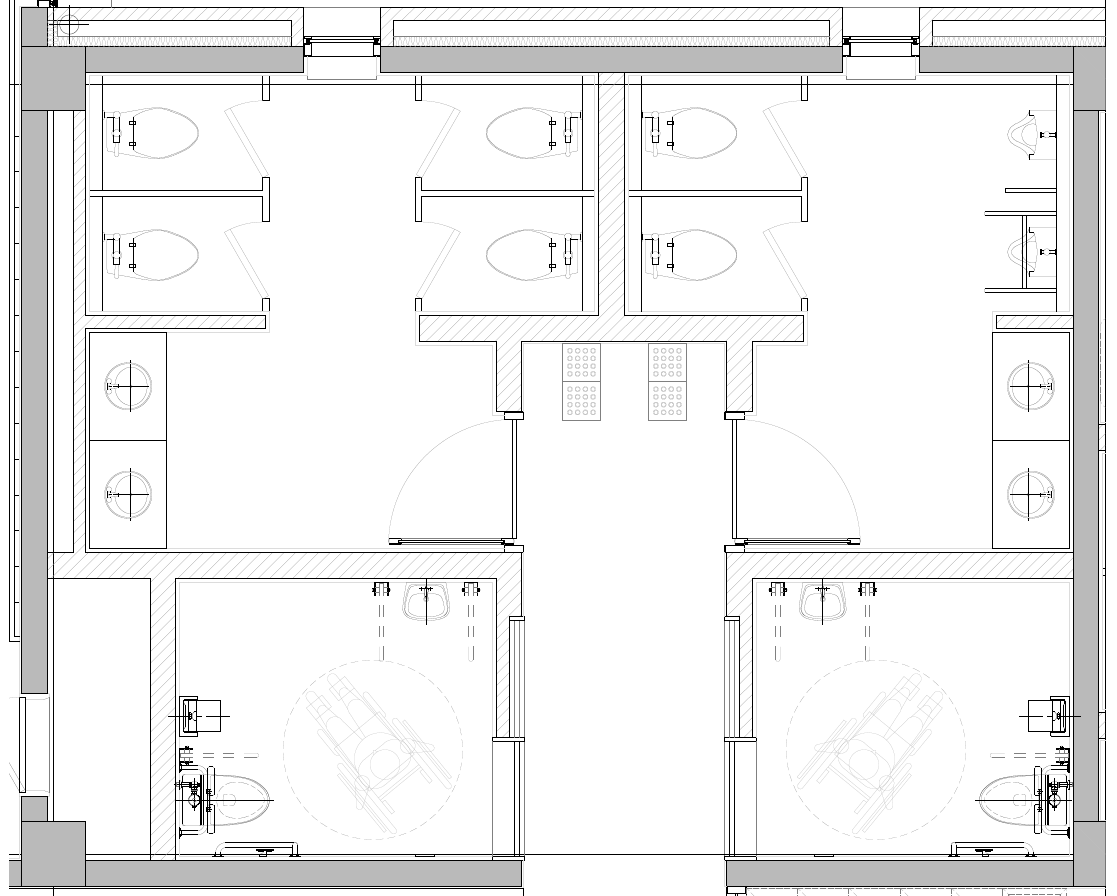
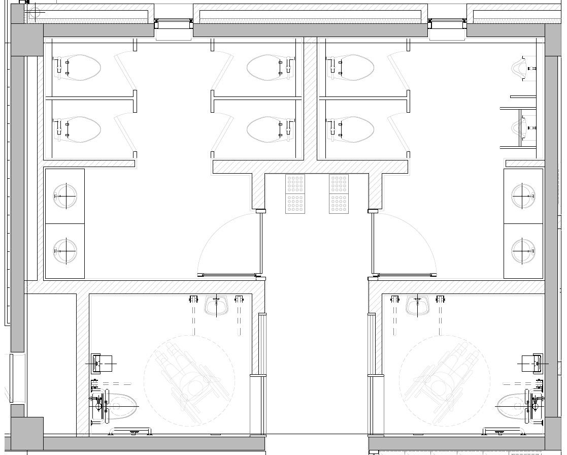
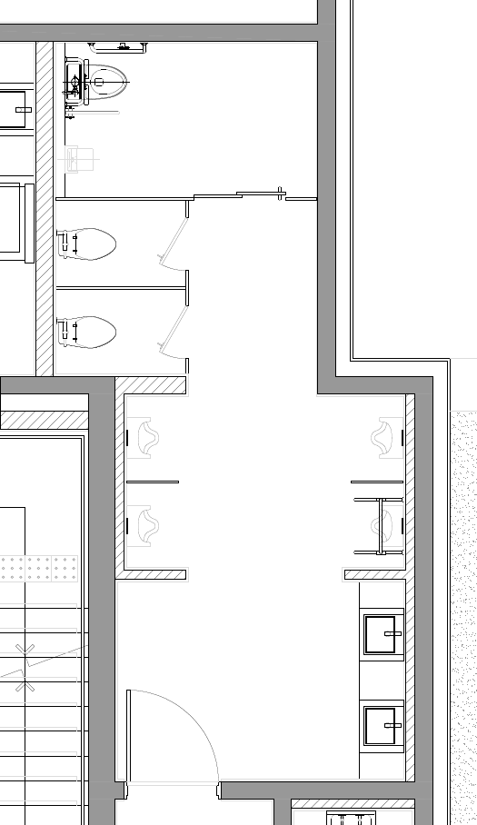
위 사진은 일반화장실 및 독립형화장실 도어가 모두 중심을 기준으로 설치된 형태입니다.
이 형태의 레이아웃 적용 시
위 사진처럼 일반화장실 도어가 여닫이일 경우 날개벽까지 확보해야하니 공용면적이 늘어나게 됩니다.
작은 건물에서 위 레이아웃을 적용하시고 싶다면
일반화장실과 독립형 화장실 모두 자동문을 설치해야 최대한 공용면적을 줄일 수 있습니다.

위 사진은 모두 자동문을 설치했을 경우 입니다.
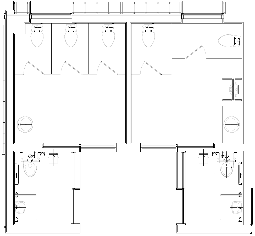
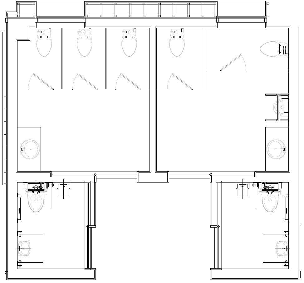
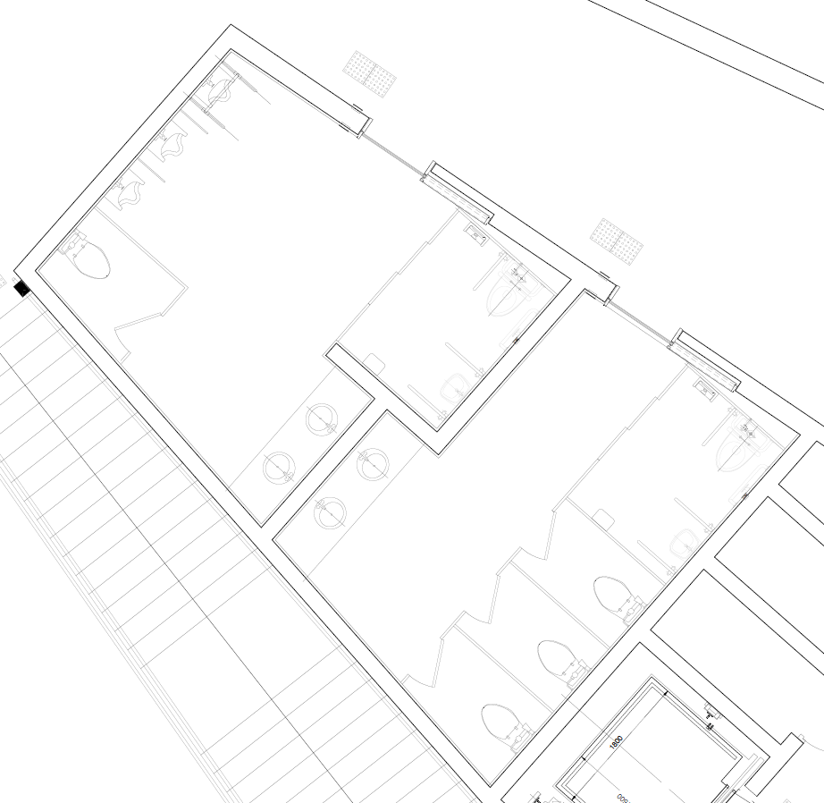
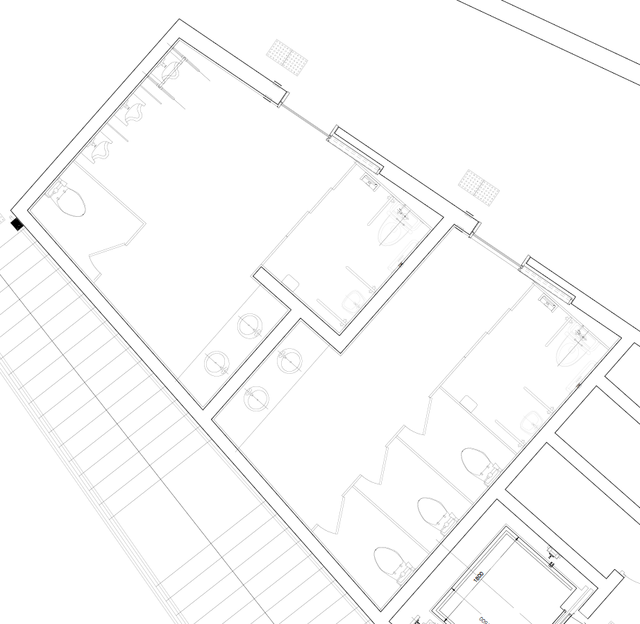
두번째.

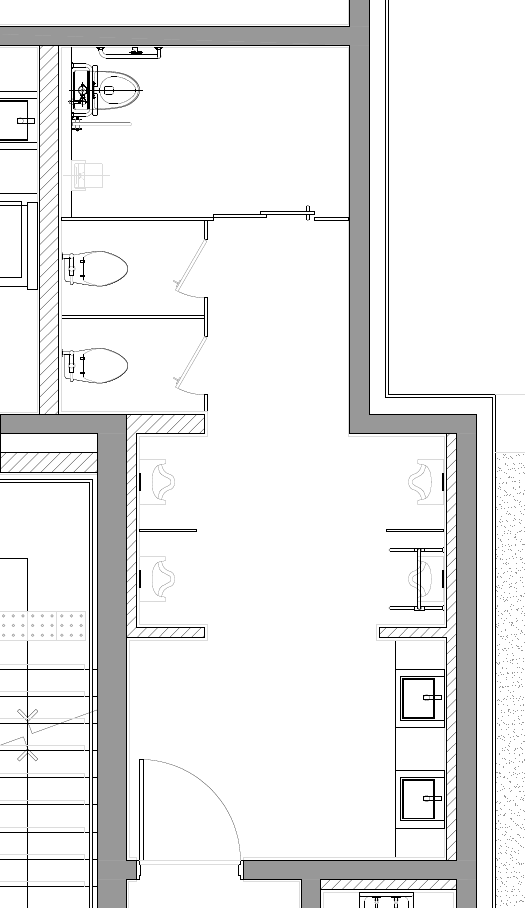
위 사진은 일반화장실 및 독립형화장실 도어가 모두 복도를 기준으로 설치된 형태입니다.
이 레이아웃은 중심형 보다 적은 면적으로 독립형을 설치 할 수 있습니다.
다만 이 레이아웃으로 설치 시, 복도 폭은
BF 기준 복도 최소폭 1200mm가 아닌 휠체어 회전폭 1500mm를 적용하여 평가됩니다. (*화장실 전면복도)



위 사진들 또한 복도형태의 레이아웃입니다.
형태만 다를뿐 복도를 중심으로 설치된 것과 같습니다.
다음으로 큐비클형으로 계획되는 레이아웃들을 살펴보겠습니다.
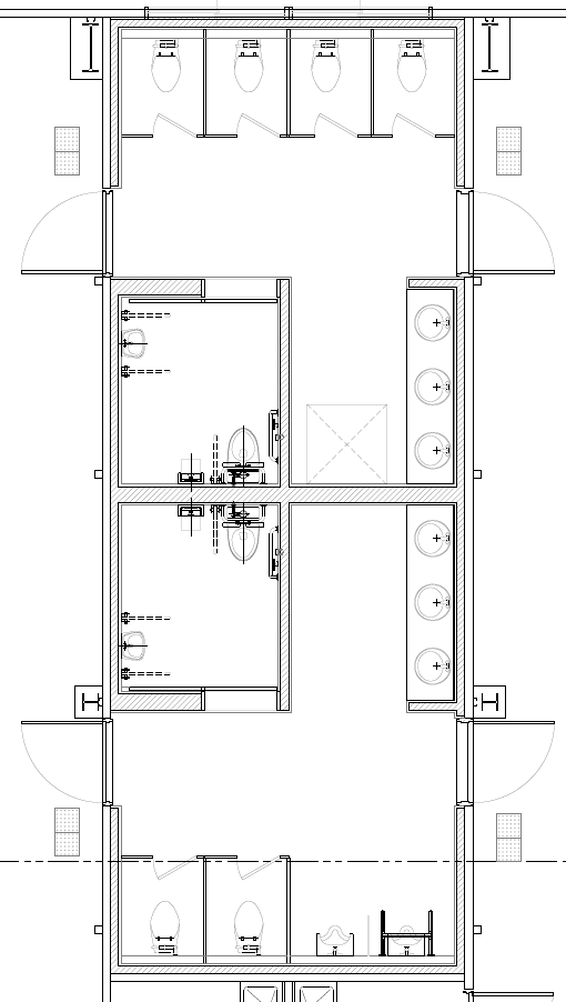
큐비클 형태의 레이아웃은 건물마다 설치위치 및 개수만 다를 뿐 주는 같습니다.



아래 사진은 큐비클 형태의 화장실이지만 장애인큐비클만 설치되어 있는 레이아웃 입니다.
독립형화장실로 설치 시 휠체어 이용자가 사용중에는 일반인들이 들어가서 세면대 사용이 불가능하기 때문에
큐비클 형태로 설치하여 세면대 접근을 용이하게 한 레이아웃입니다.

아래 사진들은 큐비클 형태의 장애인화장실은 내부에 큐비클도어 말고 자동문을 설치한 경우입니다.
측면 날개벽 미확보가 가능하다는 큰 장점이 있습니다. (날개벽 확보시 화장실 크기가 매우 커짐)


장애인화장실을 처음 계획하시는 건축사님들은 많이 어려워 하시지만 한번 만들어보시면 다음부턴 매우 쉽습니다.
기준들이 반복되고 주의해야할 부분들이 정해져 있기 때문입니다.
여기 올라온 상세도 및 BF인증기준에 대한 자료가 필요하시다면 댓글 및 오픈 채팅방을 이용해 주세요.
https://open.kakao.com/o/ge1ioBhd
감사합니다ㅎ
'BF인증_검토서' 카테고리의 다른 글
| 체육관 BF 검토 (0) | 2021.07.16 |
|---|---|
| 학교 BF 검토 (0) | 2021.07.13 |
| 어린이집 BF 검토 (4) | 2021.06.30 |
| 노유자시설 BF 검토_2 (0) | 2021.06.24 |
| 필로티 구조 BF 검토 (0) | 2021.06.24 |
댓글