안녕하세요
검토지기입니다.
이번엔 다른 노유자시설 검토 내용을 알려드리겠습니다.

이번 건물은 작은 마을에 계획되는 경로당 같은 건물입니다.
대지 경계선부터 건물까지의 접근로가 없어서 계획해 드렸습니다.
하단측에 조경이 있어 최대한 꺾이지 않게 계획했습니다.
주차구역이 1개소만 설치되어 있었는데요.
이 1개소는 장애인주차구역으로 설치 해 주셔야합니다. (BF기준 최소 1개소 이상 설치)

이 건물은 외부도어는 양여닫이 도어, 내부도어는 자동문으로 설치했습니다.
기준상으로는 문제가 없지만, 심사나 심의에 들어가면 아마 들어가는 통로를 같게 하라고 의견이 나올것 입니다.
이게 무슨말이냐면 현재 외부도어는 양개로 열리기 때문에 넓게 접근이 가능하지만, 내부도어는 자동문이기 때문에 우측으로 밖에 접근이 안되는데요
시각장애인이 접근할 시 왼측으로 접근한다면 점형블럭 인식도 어려워서 유리창에 부딫힐 가능성이 있다는 뜻입니다.
그래서 방풍실 도어를 계획하실 때, 방풍실이 협소하다면 최대한 접근 통로는 동일하게 적용하는 것이 좋습니다.
또한 이 건물의 접근이 도어 바로 앞에 계단과 측면에 경사로가 있는데요
이 계단과 경사로는 완전히 잘못됬습니다.
일단 현재 이 건물은 제주도에 설치되는 건물이 아니기에 건물 레벨을 낮추어 단차 없이 계획하라는 의견이 나올수 있고
기준상으로 외부도어 전후면유효거리가 미확보 됩니다.
경사로도 마찬가지로 전후면 수평구간 1.5m 회전구간이 확보되어야하는데 여닫이 도어의 문짝이 간섭이 되어 있습니다.
이 경우 여닫이도어가 열려있거나 회전할때 열리게 된다면 사고가 발생할 수 있습니다.

이런 건물은 보통 할머니방, 할아버지방에 화장실이 설치되는데요
화장실의 크기가 크게 계획되는 경우는 매우 드물니다.
그래서 이런 경우에는 자동문이 설치가 되어야 하는데 자동문을 설치 할 경우 관리가 제대로 되기 힘듭니다.
그래서 여닫이 도어를 외부로 열리도록 고정 설치를 권장드립니다.
현재 카운터형 세면대가 설치되어 있지만 이런 작은 화장실의 경우 독립형 세면대와 손잡이 설치를 권장드립니다.
독립형을 설치해도 좁은 공간이라 심사 받을때는 결국 폭이 좀 늘어났지만 최대한 수정을 많이 거치지 않는 선에서 안내해 드렸습니다.
할머니방, 할아버지방의 도어 손잡이 측면 활동공간 600이 현재 미확보 되어 있는데요.
옷장 사이즈를 줄여서 확보해주셔도 미확보로 평가가 됩니다.
이건 바깥쪽 복도 폭 때문인데요.
손잡이 측면 활동공간은 휠체어가 도어 측면으로 휠체어를 대고 문을 열어서 들어가란 의미로 확보를 하는 것이기 때문에 휠체어가 댈 공간이 확보되기 위해선 600만 확보 될 것이 아니라 폭까지도 고려되는 사항입니다.

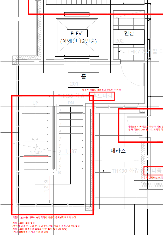
계단실 및 승강기입니다.
계단의 경우 양측손잡이나 유효폭, 챌면, 디딤판 등 기준을 표기해 드렸습니다.
근데 이 경우 승강기 전면 폭이 매우 협소합니다.
승강기에서 휠체어가 내리고 타려면 회전을 해야하는데 회전공간은 확보가 되어있지만 하단측에 계단 DN 부분이 계획되어 있습니다.
이 경우 회전하다가 계단으로 추락하는 일이 발생할 수 있어 기준적인 사항은 아니지만 심사, 심의 때 의견이 나올 가능성이 다분해 미리 검토를 해드립니다.
이런 작은 건물은 작은 승강기가 설치되는데요. 내부에 회전공간이 미확보된 승강기 설치 시 입구 반대측 승강기 벽에 거울을 설치하여 후면을 보고 휠체어가 내릴 수 있도록 조치하는 사례가 있습니다.
작은 건물들은 BF인증을 받기가 더 어려운데요. BF기준에 맞추다 보면 공용면적이 늘어나기 때문입니다.
여기 올라온 상세도 및 BF인증기준에 대한 자료가 필요하시다면 댓글 및 오픈 채팅방을 이용해 주세요.
https://open.kakao.com/o/ge1ioBhd
감사합니다ㅎ
'BF인증_검토서' 카테고리의 다른 글
| 장애인화장실 (독립형화장실, 큐비클형화장실) (6) | 2021.07.08 |
|---|---|
| 어린이집 BF 검토 (4) | 2021.06.30 |
| 필로티 구조 BF 검토 (0) | 2021.06.24 |
| 도서관 BF 검토 (0) | 2021.06.22 |
| 119안전센터 BF 검토 (0) | 2021.06.18 |
댓글