안녕하세요. 검토지기입니다.
오늘은 제1,2종 근린생활시설 BF 검토 내용을 살펴보겠습니다.
목욕탕 중심으로 살펴보겠습니다.

첫번째로 살펴볼 부분은 탈의실 입구입니다.
탈의실 입구는 프라이버시를 위해 위에 도면과 같이 도어 전면에 벽을 세워 놓고 돌아가게 동선을 계획합니다.
그렇다면 휠체어도 회전을 해야하기에 회전공간 1.4m를 확보해주셔야합니다.
회전구간은 도어 전면, 코너 구간, 락커(휠체어용) 전면 등의 구간으로 봐주시면 될 것 같습니다.

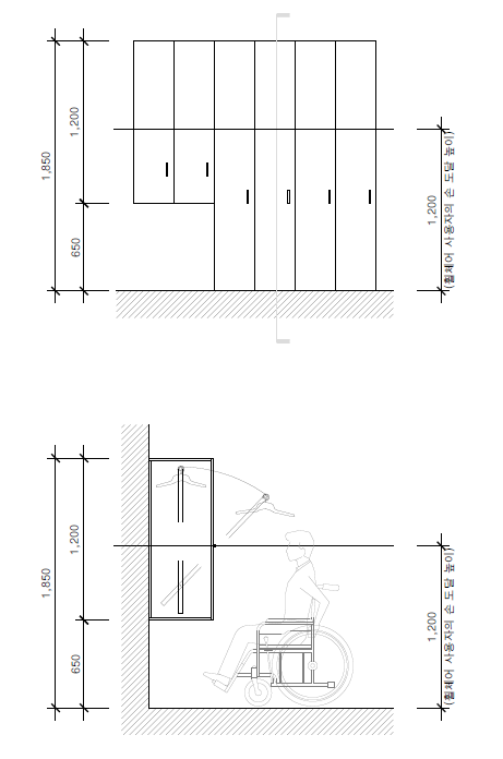
두번째로 살펴볼 부분은 탈의실 내부에 설치되는 락카 입니다.
휠체어용 락카는 휠체어 하부공간뿐만 아니라 휠체어 이용자의 손에 닿을 수 있는 형태의 락커를 설치해야 합니다.
세번째는 탈의실 내부에 화장실입니다.
외부 홀에 장애인화장실이 있다고 해도 탈의실 내부에도 휠체어용 화장실을 설치해주셔야합니다.
독립형이 아니더라도 큐비클 형태의 화장실이 필요합니다.

네번째는 샤워기구입니다.
입식수전에 경우 휠체어 이용자가 이용 할 수 있도록 접이식 의자를 설치하고 손잡이를 설치해야합니다.
좌식수전은 휠체어 이용자가 이용하기 어려워 심사와 심의를 통해 의견을 받고 조치를 권장드립니다.

다섯번째는 목욕탕입니다.
목욕탕의 BF 평가는 3.6 욕실에서 진행됩니다.
첫번째로 목욕탕과 바닥의 높이 차는 0.4m~0.45m로 설치해야합니다.
이 부분은 휠체어 이용자들이 욕탕 벽에 걸터앉아서 들어가도록 유도하기 때문입니다.
욕탕벽과 욕탕 바닥의 높이는 규정되어 있지 않아 바닥높이보다 낮게 계획이 가능합니다.
다만 시각장애인이나 지체장애인을 위해 별도에 계단설치가 필요합니다.
양측에 기준에 맞는 손잡이 및 챌면, 디딤판 치수 모두 기준에 맞는 정석계단이 필요합니다.
이 외로 욕탕 벽에는 비상벨이 설치되어야합니다.
여기 올라온 상세도 및 BF인증기준에 대한 자료가 필요하시다면 댓글 및 오픈 채팅방을 이용해 주세요.
https://open.kakao.com/o/ge1ioBhd
감사합니다ㅎ
'BF인증_검토서' 카테고리의 다른 글
| BF 계단 안내_ 직선계단/ㄱ계단/ㄷ계단/ㅁ계단 (0) | 2022.02.27 |
|---|---|
| 횡단보도 설치 방법 _ 턱낮춤 횡단보도 ver. (0) | 2022.02.25 |
| 횡단보도 설치 방법 _ 고원식 횡단보도 ver. (0) | 2021.11.23 |
| 체육시설 BF 검토 (샤워실) (7) | 2021.11.19 |
| 문화 및 집회시설(전시장) BF 검토 (0) | 2021.11.18 |
댓글