안녕하세요. 검토지기입니다.
오늘은 체육시설 BF 검토 내용을 살펴보겠습니다.
체육시설에 항상 설치되는 샤워시설을 중심으로 살펴보겠습니다.

첫번째로 살펴야할 곳은 접근 복도입니다.
샤워실은 구석에 설치되거나 복도 끝에 설치되는데요
샤워실에 휠체어가 접근하기 위해서는 복도 폭이 1.4m 이상 확보되야합니다. (회전구간)
두번째는 탈의실의 현관부분 입니다.
신발장이나 위 도면처럼 가림벽이 설치 되는 경우가 있는데요 복도와 같이
회전구간 1.4m를 꺽이는 구간마다 확보해주어야 합니다.
그리고 현관과 탈의공간의 단차는 최대 2cm 적용 가능하고 모깍기는 필수로 적용해주셔야 합니다.
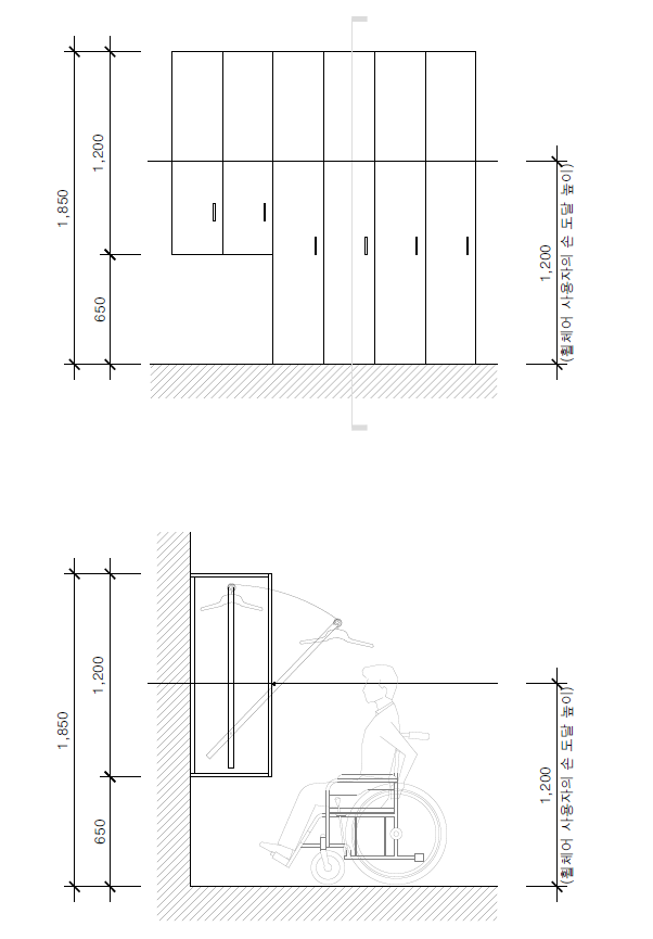
세번째는 탈의공간입니다.
탈의실의 락카 중 한개소는 휠체어 접근 가능한 형태로 설치되야합니다.
하부공간 확보는 기본이고 옷걸이대가 내려오는 형태의 락카를 설치해야 합니다.
(아래 상세도 참고)

네번째는 샤워공간입니다.
샤워실에서 휠체어 접근 가능한 샤워기구까지의 접근로에 회전구간은 1.4m 필수 확보입니다.
또한 휠체어 샤워기구가 설치된 부분의 유효바닥면적은 0.9*0.9 또는 0.75*1.3 이상 확보되야 합니다.
탈의실과 마찬가지로 단차 최대 2cm로 모깍기 적용 필수 입니다.
휠체어 샤워기구는 레버형 수도꼭지 및 0.4m 깊이의 접이식 의자 설치 및 수평, 수직 손잡이를 설치해야 합니다.
(아래 상세도 참고)

휠체어 샤워기구의 다른 치수들은 기준이 있지만 거울위치는 정해진 기준이 없어
내측 또는 외측 선택적으로 설치 가능합니다. (거울사이즈 포함)
여기 올라온 상세도 및 BF인증기준에 대한 자료가 필요하시다면 댓글 및 오픈 채팅방을 이용해 주세요.
https://open.kakao.com/o/ge1ioBhd
감사합니다ㅎ
'BF인증_검토서' 카테고리의 다른 글
| 제 1,2종 근생 BF 검토 (욕실_목욕탕) (0) | 2022.01.14 |
|---|---|
| 횡단보도 설치 방법 _ 고원식 횡단보도 ver. (0) | 2021.11.23 |
| 문화 및 집회시설(전시장) BF 검토 (0) | 2021.11.18 |
| 한옥 BF 검토 (0) | 2021.08.24 |
| 문화센터 BF 검토 (0) | 2021.08.11 |
댓글